
RMN GmbH Bauträger Bauunternehmen
Frau Xenia Weber
084 ···
Nr. anzeigenPreise & Kosten
Provision für Käufer
provisionsfrei
Lage
Dieses Mehrfamilienhaus befindet sich in wunderbarer, ruhiger und begehrter Lage im Süden von Ingolstadt.
Die architektonische und energe- tische Planung ist sicherlich ein besonderes Wohnhighlight in der Region 10.
Mit den Vorteilen einer perfekten Wohnlage, unweit dem Ingol- städter Hauptbahnhof und den...
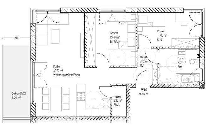
Die Wohnung
Wohnungslage
1. Geschoss
Bezug
2026
Wohnanlage
Energie & Heizung
Warum sehe ich diese Anzeige? – Du siehst diese Anzeige basierend auf Ihrer Navigation auf unserer Website und den Suchkriterien, die du verwendet hast.
Weitere Energiedaten
Energieträger
Elektro, Solar
Haustyp
KfW 40
Heizungsart
Fußbodenheizung, Luft-/Wasser-Wärmepumpe, Zentralheizung
Details
Objektbeschreibung
•KfW 40 niedrigenergiebauweise für hohe Energieeffizienz
•energieeffiziente Luftwärmepumpe
•Photovoltaikanlage inklusive
•zentrale und sehr ruhige Wohnlage
•Tiefgarage
•Aufzug
•individuell planbare Grundrisse möglich
•zahlreiche Freizeitmöglichkeiten in nächster Nähe
•Festpreis schlüsselfertig mit...
Ausstattung
Alle Wohnungen sind mit großzügigen, modernen und offenen Grundrissen sowie mit großen Fensterflächen für helle und lichtdurchflutete Räume geplant. Die Innenräume werden mit wertigen Materialien wie z. B. Echtholzparkett, Feinsteinfliesen sowie Fußbodenheizung ausgestattet. Bei der Badausstattung (Fliesen und Sanitär) werden...
Weitere Informationen
Besichtigungstermine
Gerne besichtigen wir mit Ihnen Ihr neues Zuhause. Termine flexibel nach Absprache.
Stichworte
Versorgung: Eigene Stromversorgung
Sonstiges: Neubaustandard
Dokumente
Anbieter der Immobilie

RMN GmbH Bauträger Bauunternehmen
Nördliche Ringstraße 30, 85057 Ingolstadt
Online-ID: 2h4vv58
Finde Angebote wie dieses
Hier geht es zu unserem Impressum, den Allgemeinen Geschäftsbedingungen, den Hinweisen zum Datenschutz und nutzungsbasierter Online-Werbung.