
immoS_immobilienService
Kontaktiere den Anbieter schriftlich, es ist keine Telefonnummer hinterlegt.
Preise & Kosten
Provision für Käufer
provisionsfrei
Die Wohnung
Bezug
frei
Derzeitige Nutzung
frei
Wohnanlage
Energie & Heizung
Warum sehe ich diese Anzeige? – Du siehst diese Anzeige basierend auf Ihrer Navigation auf unserer Website und den Suchkriterien, die du verwendet hast.
Energieausweistyp
Bedarfsausweis
Gebäudetyp
Wohngebäude
Baujahr laut Energieausweis
2004
Wesentliche Energieträger
Gas
Gültigkeit
20.08.2025 bis 19.08.2035
Effizienzklasse
E
Endenergiebedarf
138,30 kWh/(m²·a)
Weitere Energiedaten
Energieträger
Gas
Heizungsart
Zentralheizung
Details
Weitere Informationen
möblierte Apartments
Zur Kontaktaufnahme benötigen wir Ihre Tel. Nr. / bitte im Anfrageformular angeben
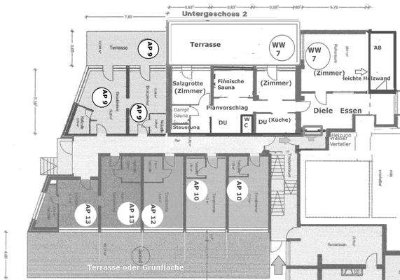
Grundstück 3.395 m²
Baujahr 1972 / 1976 - aufgeteilt n. WEG,
Eigennutzung, Ferienwohnung,Vermietung etc./ kein Erstwohnsitz
AP 1_1 Zimmer, DU/WC, Balkon, möbliert, ca. 19,36 m²...
Anbieter der Immobilie
immoS_immobilienService
Christian - Wildner - Str. 17 , 90411 Nürnberg
Kontaktiere den Anbieter schriftlich, es ist keine Telefonnummer hinterlegt.
Online-ID: 2h2uc5h
Finde Angebote wie dieses
Hier geht es zu unserem Impressum, den Allgemeinen Geschäftsbedingungen, den Hinweisen zum Datenschutz und nutzungsbasierter Online-Werbung.