
Haring Immobilientreuhand GmbH
Frau Jeannette Struppe
004 ···
Nr. anzeigenPreise & Kosten
Provision für Käufer
Provisionsfrei
Die Wohnung
Wohnungslage
2. Geschoss
Bezug
30.06.2028
Wohnanlage
Energie & Heizung
Warum sehe ich diese Anzeige? – Du siehst diese Anzeige basierend auf Ihrer Navigation auf unserer Website und den Suchkriterien, die du verwendet hast.
Heizwärmebedarf (HWB)
34,30 kWh/(m²·a)
Gesamtenergieeffizienz (fGEE)
0,74
Details
Objektbeschreibung
ASPERN FLATS 101
Angrenzend an das Projekt Wulzendorfstraße 103 fügt sich das Wohnbauprojekt Wulzendorfstraße 101 mit seinen 80 provisionsfreien frei finanzierten Eigentumswohnungen und 37 PKW-Tiefgaragenstellplätzen perfekt in die Umgebung ein. Die durchdachten Raumaufteilungen der 2- und 3- Zimmer-Wohnungen mit 34m²...
Weitere Informationen
Stichworte
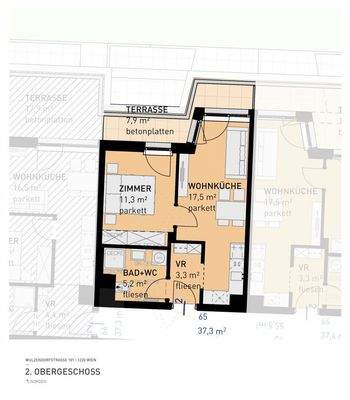
Nutzfläche: 37,30 m², Gesamtfläche: 39,28 m², Anzahl Terrassen: 1, Balkon-Terrassen-Fläche: 7,90 m², Kellerfläche: 2,20 m², Bundesland: Wien, 4 Etagen, Wohnungsnr.: 65
Dokumente
Anbieter der Immobilie
Haring Immobilientreuhand GmbH
Doningasse 12 / Stiege 1 / 2. OG / Top 05, 1220 WIEN
Online-ID: 2guy45f
Referenznummer: OBGC202310111637444303d8f9d4038
Finde Angebote wie dieses
Günstige Immobilienfinanzierung einfach online berechnen
Persönliches Angebot berechnenWarum sehe ich diese Werbung? – Du siehst diese Werbung basierend auf Deiner Navigation auf unserer Website und der von Dir verwendeten Suchkriterien.
Diese Werbung wird bezahlt von durchblicker
Werbung melden
Hier geht es zu unserem Impressum, den Allgemeinen Geschäftsbedingungen, den Hinweisen zum Datenschutz und nutzungsbasierter Online-Werbung.