

Friedemann Immobilien e.K.
Team Friedemann Immobilien Mietanfragen
+49 ···
Nr. anzeigenPreise & Kosten
Kaution
1.500,00
Provision für Mieter
Bitte beachte, das Angebot kann bei Vertragsabschluss die Zahlung einer Provision beinhalten. Weitere Informationen erhältst Du vom Anbieter.
Warum sehe ich diese Anzeige? – Du siehst diese Anzeige basierend auf Ihrer Navigation auf unserer Website und den Suchkriterien, die du verwendet hast.
Büro-/Praxisfläche
Kategorie
Bürofläche
Bezug
Kurzfristiger Bezug möglich.
Derzeitige Nutzung
frei
Geschoss
2. Geschoss
Energie & Heizung
Warum sehe ich diese Anzeige? – Du siehst diese Anzeige basierend auf Ihrer Navigation auf unserer Website und den Suchkriterien, die du verwendet hast.
Weitere Energiedaten
Energieträger
Öl
Heizungsart
Zentralheizung
Details
Objektbeschreibung
Wohnlage:
Zentrale Lage im Innenstadtbereich von Bad Oeynhausen. Fußgängerzone, Kurpark, Bahnhof und Busbahnhof befinden sich nur wenige Gehminuten entfernt.
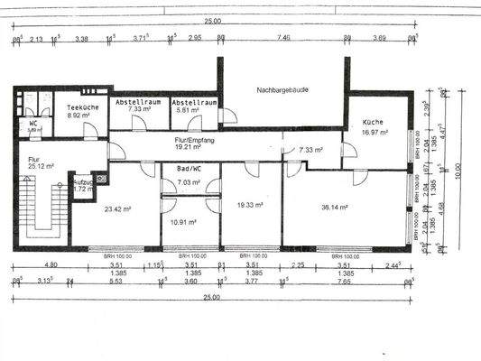
Nutzfläche:
Ca. 162 m² Gesamtnutzfläche im 2. Obergeschoss eines Geschäftshauses.
Aufteilung:
Großzügiges und helles Treppenhaus, Flur, 2...
Weitere Informationen
Besonderheiten
Bevor wir Ihnen das ausführliche Exposé zusenden können, prüfen wir Ihre Angaben.
Stichworte
Sonstiges: EDV-Verkabelung
Anbieter der Immobilie
Friedemann Immobilien e.K.
Detmolder Str. 44, 32545 Bad Oeynhausen

Online-ID: 2gerd5c
Referenznummer: K3198
Finde Angebote wie dieses
Hier geht es zu unserem Impressum, den Allgemeinen Geschäftsbedingungen, den Hinweisen zum Datenschutz und nutzungsbasierter Online-Werbung.