Immocenter Ungarn | Hotel Consulting Meyer Kft

Herr C.Meyer REBA Immobilien AG

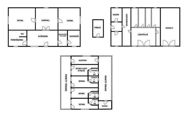
Großer Pferdehof mit Haupthaus & 3 Gäste-Apartments

€ 336.000
Kaufpreis
180 m²
Wohnfläche ca.
7
Zimmer
80 270 m²
Grundstücksfl. ca.

Der Anbieter dieses Objekts hat gegenüber der AVIV Germany GmbH als Betreiber dieses Online-Marktplatzes erklärt, nicht als Unternehmer im Sinne des § 1 KSchG zu handeln. Die im Verbraucherschutzrecht der Union verankerten Verbraucherrechte (insbesondere Informationspflichten und Rücktritts- bzw. Widerrufsrechte) finden auf den Vertrag zwischen dem Anbieter des Objekts und Ihnen (dem Interessenten) keine Anwendung.

Gewerblicher Anbieter

Der Anbieter dieses Objekts hat gegenüber der AVIV Germany GmbH als Betreiber dieses Online-Marktplatzes erklärt, als Unternehmer im Sinne des § 1 KSchG zu handeln.

AdresseStraße nicht freigegeben
6100 bei Kiskunfélegyháza 
Auf Karte ansehen

Preise & Kosten

Kaufpreis € 336.000

Provision für Käufer

1,27 % vom Kaufpreis inkl. MwSt
Als Käufer zahlen Sie bei diesem Objekt 1,27 % inkl. ungarischer MwSt gegen Rechnungslegung und Unterzeichnung des Kaufvertrages. Weitere Informationen siehe Provisionshinweis.

Lage

In ruhiger Region, 8 Minuten ab Autobahnausfahrt M5 und 1h15 von Flughafen Budapest Liszt Ferenc. Bushaltestelle 5min zu Fuß ab Hof. Nächste Ortschaften Kiskummajsa 8 km (Thermalbad) oder 10 km Kiskunfelegyhaza ( Bahnhof, Einkaufscenter, Ärzte, Aphoteken, Restaurants etc).

Das Haus

  • Zustand: gepflegt
  • Terrasse, Loggia
  • Bad mit Fenster und Dusche
  • Einbauküche
  • Ausstattung: möbliert

Energie & Heizung

Energieausweistyp

Bedarfsausweis

Gebäudetyp

Wohngebäude

Wesentliche Energieträger

Holz

Effizienzklasse

G

Weitere Energiedaten

Energieträger

Holz

Heizungsart

offener Kamin, Zentralheizung

Details

Objektbeschreibung

Seltene Gelegenheit: Pferdehof mit großem Grundstück (erweiterbar auf knapp 30 Ha) , dazu 3 Gästezimmer mit eigener Küche und eigenem Aufenthaltsraum.

- Hof mit 8,6 Hektar eingezäunten Land für Ausländer erwerbbar, da es aus der Landwirtschaftszone ausgenommen ist und noch mit ca. 1.000 m² zusätzlich bebaut werden kann...

Mehr anzeigen

Ausstattung

- 5 gebohrte Brunnen
- Sickergrube
- Strom 230/380V, maximale Amperleistung

Weitere Informationen

Provisionshinweis
1,27 % vom Kaufpreis inkl. MwSt
Als Käufer zahlen Sie bei diesem Objekt 1,27 % inkl. ungarischer MwSt gegen Rechnungslegung und Unterzeichnung des Kaufvertrages.
In diesem Preis enthalten ist die

- Überprüfung des Grundbuchs nach Lastenfreiheit und Eigentümerrechten
- Vermittlung eines...

Mehr anzeigen

Anbieter der Immobilie

Immocenter Ungarn | Hotel Consulting Meyer Kft

im Durchschnitt  4,40  Sterne
(bei 13 Bewertungen)

Fö U. 122, 8394 Alsopahok | Héviz

user

Herr C.Meyer REBA Immobilien AG

Dein Ansprechpartner

Anbieter-Profil Anbieter-Impressum

Online-ID: 2gdlf56

Referenznummer: WH0220-3

Finde Angebote wie dieses

imageimageimage

Hier geht es zu unserem Impressum, den Allgemeinen Geschäftsbedingungen, den Hinweisen zum Datenschutz und nutzungsbasierter Online-Werbung.