
Dr.Sporkenbach Baukonzept GmbH
Herr Holger Schmidt
039 ···
Nr. anzeigenPreise & Kosten
Provision für Käufer
provisionsfrei
Lage
Glindenberg ist ein kleines charmantes Dorf, das zur Gemeinde Hohe Börde im Landkreis Börde in Sachsen-Anhalt gehört. Es liegt nur wenige Kilometer nördlich der Landeshauptstadt Magdeburg, was die Ortschaft zu einem attraktiven Wohnort für Pendler und Ruhesuchende macht.
Die Nähe zur Stadt sorgt für eine hervorragende...
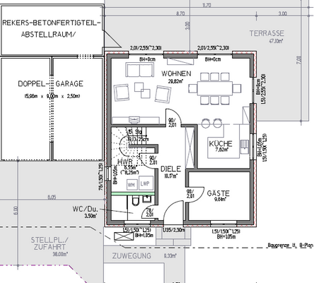
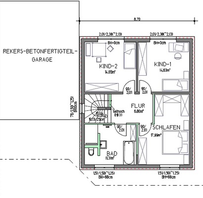
Das Haus
Kategorie
Einfamilienhaus
Geschosse
2 Geschosse
Baujahr
2025/2026
Bezug
Juni 2026
Energie & Heizung
Warum sehe ich diese Anzeige? – Du siehst diese Anzeige basierend auf Ihrer Navigation auf unserer Website und den Suchkriterien, die du verwendet hast.
Energieausweistyp
Bedarfsausweis
Gebäudetyp
Wohngebäude
Wesentliche Energieträger
Strom
Effizienzklasse
A+
Endenergiebedarf
27,00 kWh/(m²·a)
Weitere Energiedaten
Heizungsart
Fußbodenheizung, Luft-/Wasser-Wärmepumpe
Details
Ausstattung
Herzlich willkommen in Ihrem neuen Zuhause, das speziell für familienorientierte Kunden wie Sie gestaltet wurde. Diese Immobilie ist der ideale Ort, um viel gemeinsame Erinnerungen zu schaffen und ein harmonisches Familienleben zu führen. Das Haus bietet ausreichend Platz zum Wachsen und Gedeihen. Mit geräumigen Schlafzimmern...
Weitere Informationen
Sonstiges
Es handelt sich hierbei um ein im Bau befindliches, noch nicht fertig gestelltes Haus.
Fertigstellung Juni 2026.
Das abgebildete Haus kann Sonderausstattungen enthalten.
Unser kostenloser Finanzierungsservice ist selbstverständlich für Sie da und hilft Ihnen den Traum vom Eigenheim zu...
Anbieter der Immobilie

Dr.Sporkenbach Baukonzept GmbH
Im Elbbahnhof 47, 39104 Magdeburg
Online-ID: 2gddh55
Referenznummer: 29.42.2017-52
Finde Angebote wie dieses
Hier geht es zu unserem Impressum, den Allgemeinen Geschäftsbedingungen, den Hinweisen zum Datenschutz und nutzungsbasierter Online-Werbung.