Riwog Real Estate Management GmbH

Herr Learco Andrea Tews, MSc (WU)

ERSTBEZUG MIT TRAUMBLICK | DG-Maisonette mit ca. 27 m² TERRASSE | TG-Stellplatz optional | Nachhaltiges Wohnbauprojekt

€ 990.000
Kaufpreis
128,02 m²
Wohnfläche ca.
3
Zimmer
Finanzierung berechnen mit durchblicker

Der Anbieter dieses Objekts hat gegenüber der AVIV Germany GmbH als Betreiber dieses Online-Marktplatzes erklärt, nicht als Unternehmer im Sinne des § 1 KSchG zu handeln. Die im Verbraucherschutzrecht der Union verankerten Verbraucherrechte (insbesondere Informationspflichten und Rücktritts- bzw. Widerrufsrechte) finden auf den Vertrag zwischen dem Anbieter des Objekts und Ihnen (dem Interessenten) keine Anwendung.

Gewerblicher Anbieter

Der Anbieter dieses Objekts hat gegenüber der AVIV Germany GmbH als Betreiber dieses Online-Marktplatzes erklärt, als Unternehmer im Sinne des § 1 KSchG zu handeln.

AdresseArndtstraße 50
1120 Wien 
(Meidling)
Auf Karte ansehen

Preise & Kosten

Kaufpreis € 990.000 Betriebskosten € 281,67

Provision für Käufer

35.640,00 € inkl. 20% USt.

Lage

Längenfeldgasse (U4/U6) | Meidlinger Markt | Steinbauerpark

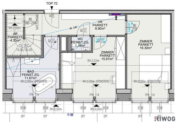
Die Wohnung

Wohnungslage

6. Geschoss (Dachgeschoss)

Bezug

ab sofort

  • Bad mit Fenster und Wanne, Gäste-WC
  • Terrasse
  • offene Küche
  • barrierefrei
  • Böden: Estrich, Fliesenboden, Parkett
  • Zustand: Erstbezug
  • voll klimatisiert
  • Anschlüsse: Kabelanschluss

Wohnanlage

  • Baujahr: 2024
  • Zustand: Neubau
  • Personenaufzug

Energie & Heizung

Heizwärmebedarf (HWB)

B

26,40 kWh/(m²·a)

Gesamtenergieeffizienz (fGEE)

A

0,73

Weitere Energiedaten

Energieträger

Fernwärme

Heizungsart

Fußbodenheizung

Details

Objektbeschreibung

_NACHHALTIGES WOHNBAUPROJEKT IM HIPPEN MEIDLING _

_BEZUGSFERTIG_
 

In diesem zukunftsweisenden Wohnprojekt im angesagten Meidling, an der Ecke zur Längenfeldgasse entstanden 78 Wohnungen und 2 Ateliers mit verschiedenen Raumgrößen und eignen sich aufgrund der intelligenten Grundrissplanung...

Mehr anzeigen

Weitere Informationen

Stichworte
Nord-West-Balkon/Terrasse, Fahrradraum, Rolladen, Anzahl der Badezimmer: 1, Anzahl der separaten WCs: 2, Anzahl Terrassen: 1, Balkon-Terrassen-Fläche: 27,46 m², Kellerfläche: 2,30 m², Bundesland: Wien, 8 Etagen, Wohnungsnr.: 72

Anbieter der Immobilie

Partner

Riwog Real Estate Management GmbH

im Durchschnitt  5,00  Sterne
(bei 2 Bewertungen)

Börsegasse 12, 1010 WIEN

Geschäftszeiten
user

Herr Learco Andrea Tews, MSc (WU)

Dein Ansprechpartner

Anbieter-Profil Anbieter-Impressum

Online-ID: 2gd625b

Referenznummer: OBGC2024051109131319526c693c9de

Finde Angebote wie dieses

imageimageimage

Günstige Immobilienfinanzierung einfach online berechnen

Persönliches Angebot berechnen

Hier geht es zu unserem Impressum, den Allgemeinen Geschäftsbedingungen, den Hinweisen zum Datenschutz und nutzungsbasierter Online-Werbung.