

Temme Immobilien GmbH & Co. KG
Frau Nicole Müller
+49 ···
Nr. anzeigenPreise & Kosten
Kaution
3 Bruttomonatsmieten / Bankbürgschaft
Provision für Mieter
provisionsfrei
Warum sehe ich diese Anzeige? – Du siehst diese Anzeige basierend auf Ihrer Navigation auf unserer Website und den Suchkriterien, die du verwendet hast.
Lage
Das Objekt liegt in zentraler und verkehrsgünstiger Lage, südlich der Nürnberger Innenstadt und verfügt über eine gute Anbindung an öffentliche Verkehrsmittel. In unmittelbarer Nachbarschaft befinden sich zahlreiche Einkaufsmöglichkeiten und Restaurants.
ENTFERNUNGEN
Bushaltestelle "Harsdörfferplatz" ca. 2...
Büro-/Praxisfläche
Kategorie
Bürofläche
Bezug
nach Vereinbarung
Details
Objektbeschreibung
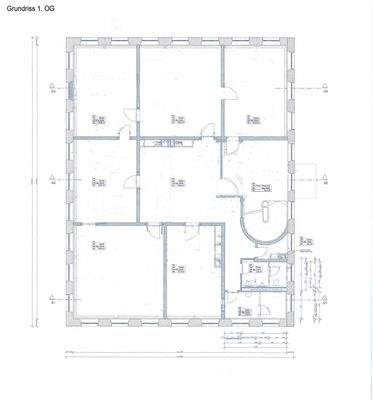
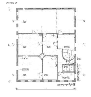
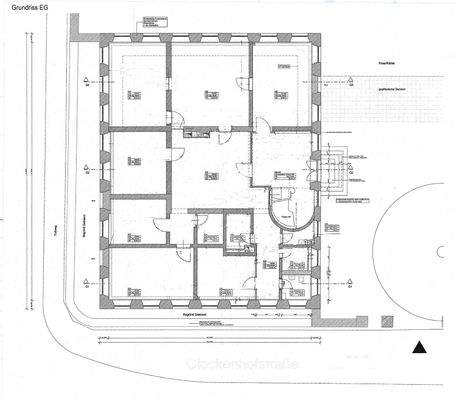
GRÖSSE
ca. 220 m² EG
ca. 235 m² 1. OG
ca. 245 m² 2. OG
ca. 700 m² Gesamt
MIETPREIS
10,50 EUR/m²
jeweils zzgl. NK/HK/MwSt. und vorbehaltlich einer Überprüfung der Mietersonderwünsche, deren Kosten und Verteilung.
BEZUG
nach Vereinbarung
STELLPLÄTZE
Es können 7...
Ausstattung
- repräsentatives Gebäude
- hohe, lichtdurchflutete Räume mit großzügigen Fensterfronten
- Parkettboden, Eingangsbereiche und Sanitärräume hochwertige Fliesen
- charmantes Treppenhaus
- CAT Verkabelung über Kabelkanäle
- Glasfaseranbindung
- größtenteils Schallschutzdecken
- innenliegender Sonnenschutz...
Weitere Informationen
Sonstiges
MIETERPROVISION*
Provisionsfrei!
Voraussetzung ist eine Mietvertragslaufzeit von 5 Jahren.
Bei kürzeren Mietvertragslaufzeiten wird der Mieter an der Provision beteiligt.
MIETEROPTIONSRECHT
Kumulativ kommt zu den vorstehend genannten jeweiligen Mieterprovisionen eine zusätzliche Mieterprovision...
Dokumente
Anbieter der Immobilie
Temme Immobilien GmbH & Co. KG
Am Tullnaupark 4, 90402 Nürnberg

Online-ID: 2g7bc5p
Referenznummer: 1060/bvm
Finde Angebote wie dieses
Hier geht es zu unserem Impressum, den Allgemeinen Geschäftsbedingungen, den Hinweisen zum Datenschutz und nutzungsbasierter Online-Werbung.