
Spittel Bau GmbH
Albert Feix
074 ···
Nr. anzeigenPreise & Kosten
Provision für Käufer
2.75 % inkl. MwSt.
Lage
Die Stadt Vöhrenbach liegt im Tal der Breg im mittleren Schwarzwald zwischen Furtwangen und der Kreisstadt Villingen-Schwenningen und hat rund 3.800 Einwohner. Neben der Kernstadt gehören die Ortsteile Hammereisenbach-Bregenbach, Langenbach und Urach zum Stadtgebiet. Die Wirtschaft der Stadt ist heute geprägt von...
Das Haus
Kategorie
Einfamilienhaus
Baujahr
1972
Bezug
nach Absprache
Energie & Heizung
Warum sehe ich diese Anzeige? – Du siehst diese Anzeige basierend auf Ihrer Navigation auf unserer Website und den Suchkriterien, die du verwendet hast.
Energieausweistyp
Bedarfsausweis
Gebäudetyp
Wohngebäude
Wesentliche Energieträger
Öl
Gültigkeit
02.11.2022 bis 01.11.2032
Effizienzklasse
D
Endenergiebedarf
105,20 kWh/(m²·a)
Weitere Energiedaten
Energieträger
Öl
Heizungsart
offener Kamin, Zentralheizung
Details
Objektbeschreibung
Modernes Wohnambiente in ausgesuchter Schwarzwaldlage!
Dieses 1972 massiv erstellte Architektenhaus bietet neben einer immer noch sehr modernen und ansprechenden Architektur einen atemberaubenden Ausblick und viel Platz für eine große Familie.
Auf einem traumhaften Grundstück mit 4.516 m² liegt dieses Haus in einer...
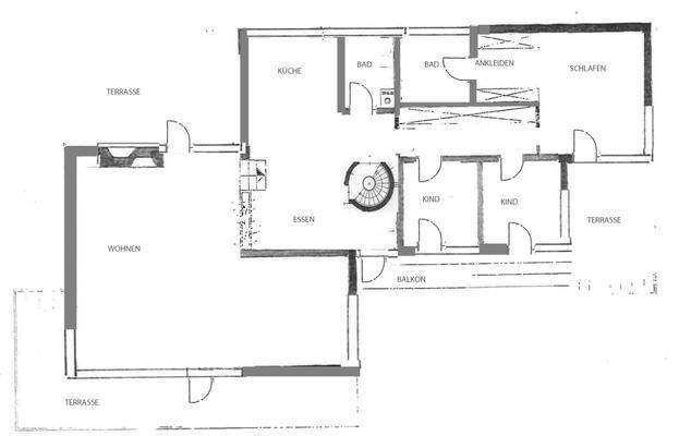
Ausstattung
EG:
- Moderne, offene und hochwertig ausgestattete Küche
- Essbereich
- großzügiges Wohnzimmer mit eingebundener Leseecke
- Schlafzimmer
- Arbeitszimmer
- Großes Schlafzimmer
- Bad mit Eckbadewanne, Dusche, WC und 2 Waschbecken
- Weiteres kleines Bad mit Dusche und WC
- Flur
- Großer Balkon
-...
Preisinformation
2 Stellplätze
2 Garagenstellplätze
Weitere Informationen
Sonstiges
Energieausweis: Bedarfsausweis gültig von: 02.11.2022
Endenergiebedarf Wärme: 105.2 kWh/(m²a)
Wesentliche Energieträger Heizung: Befeuerung Oel
Baujahr: 1972
Beim Kauf der nachfolgend angebotenen Immobilie beträgt der monatliche Aufwand 3.379,92 €
bei einem Kaufpreis von 990.000,00...
Anbieter der Immobilie
Online-ID: 2frcl5j
Referenznummer: 2875
Finde Angebote wie dieses
Hier geht es zu unserem Impressum, den Allgemeinen Geschäftsbedingungen, den Hinweisen zum Datenschutz und nutzungsbasierter Online-Werbung.