
Thomas Immobilien GmbH
Frau Dora Vazquez
017 ···
Nr. anzeigenPreise & Kosten
Provision für Käufer
Provisionsfrei für den Käufer
Das Haus
Kategorie
Bungalow
Details
Objektbeschreibung
NEU GEBAUTE WOHNANLAGE IN ROJALES
Neubau-Wohnanlage mit Bungalowwohnungen, Reihenhäusern und Doppelhaushälften in Rojales.
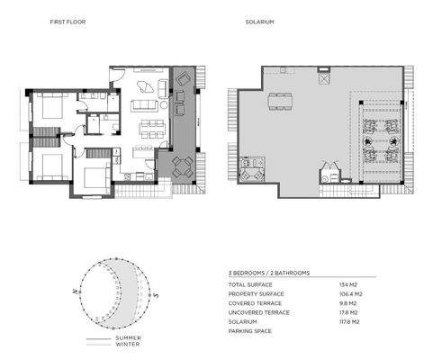
Moderne Neubau-Bungalow-Wohnungen mit 2 und 3 Schlafzimmern auf 2 Etagen: Erdgeschoss mit privatem Garten und ersten Stock mit privater Dachterrasse.
Moderne Stadthäuser über 2 Etagen mit 3...
Weitere Informationen
Stichworte
Anzahl der Schlafzimmer: 3, Anzahl der Badezimmer: 2, Bundesland: Alicante
Anbieter der Immobilie
Online-ID: 2fpwa5c
Referenznummer: 4-26-SP0580
Finde Angebote wie dieses
Hier geht es zu unserem Impressum, den Allgemeinen Geschäftsbedingungen, den Hinweisen zum Datenschutz und nutzungsbasierter Online-Werbung.