
HBS Projekt-Management GmbH
Herr Michael Lorenz
(+4 ···
Nr. anzeigenPreise & Kosten
Kaution
2.175,00
Warum sehe ich diese Anzeige? – Du siehst diese Anzeige basierend auf Ihrer Navigation auf unserer Website und den Suchkriterien, die du verwendet hast.
Lage
Ruhige Anlage in einer Wohnanlage im Westen Hassfurts
Die Wohnung
Kategorie
Maisonette
Wohnungslage
2. Geschoss (Dachgeschoss)
Bezug
sofort
Wohnanlage
Energie & Heizung
Warum sehe ich diese Anzeige? – Du siehst diese Anzeige basierend auf Ihrer Navigation auf unserer Website und den Suchkriterien, die du verwendet hast.
Energieausweistyp
Verbrauchsausweis
Gebäudetyp
Wohngebäude
Baujahr laut Energieausweis
2004
Wesentliche Energieträger
Gas
Gültigkeit
16.03.2018 bis 16.03.2028
Endenergieverbrauch
52,00 kWh/(m²·a) - Warmwasser enthalten
Weitere Energiedaten
Energieträger
Gas
Heizungsart
Zentralheizung
Details
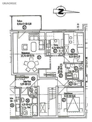
Objektbeschreibung
Objektbeschreibung
4-Zimmer-Wohnung im Dachgeschoss eines Mehrfamilienwohnhauses in ruhiger Lage in Hassfurt
2. OG (DG): 2 Schlafzimmer, Küche, Bad/WC, Gäste-WC, heller Wohn-Essbereich mit Zugang zum Balkon
Spitzboden: 1 großer Raum als Schlafzimmer oder Arbeitszimmer, über Raumspartreppe begehbar.
1 TG Stellplatz...
Weitere Informationen
Besichtigungstermine
Bei Interesse können Sie uns gerne eine Anfrage direkt über Immowelt senden. Bitte nutzen Sie ausschließlich das Kontaktformular unter Angabe der betreffenden Wohnung.
Geben Sie Ihre Kontaktdaten und Telefonnummer an, damit wir Sie telefonisch kontaktieren können, um einen persönlichen...
Anbieter der Immobilie
Online-ID: 2fpuw5e
Referenznummer: 1150
Finde Angebote wie dieses
Hier geht es zu unserem Impressum, den Allgemeinen Geschäftsbedingungen, den Hinweisen zum Datenschutz und nutzungsbasierter Online-Werbung.