

Immosuch GmbH
Firma iMMOSUCH GmbH
(03 ···
Nr. anzeigenPreise & Kosten
Provision für Käufer
4,76% inkl. MwSt.
Lage
Die modern ausgestattete Wohnung befindet sich im Zentrum von Radebeul-West. Die Wohnanlage ist sehr gepflegt.
Der Wohnstandort zeichnet sich durch fußläufige Erreichbarkeit von Geschäften des täglichen Bedarfs und öffentlichen Verkehrsmitteln aus. Der Bahnhof Altkötzschenbroda ist nur ca. 100 Meter entfernt. Durch die...
Die Wohnung
Wohnungslage
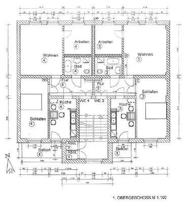
1. Geschoss
Wohnanlage
Details
Objektbeschreibung
Im wunderschönen Radebeul ist diese sehr schöne 3-Raumwohnung im 1. OG mit großem Balkon inkl. Kellerabteil zu verkaufen.
Es handelt sich um eine sanierte Altbauwohnung in zentraler Lage im Stadtteil Kötzschenbroda.
Das denkmalgeschützte Wohnhaus wurde vollständig saniert. 2013/2014 wurde...
Weitere Informationen
Sonstiges
Die von uns gemachten Angaben haben wir nach bestem Wissen und Gewissen sowie den uns vom Eigentümer zur Verfügung stehenden Informationen zusammengestellt.
Eine Gewähr für diese Angaben können wir nicht übernehmen.
Wichtige Zahlen und Informationen sind am Objekt zu überprüfen.
Der Verkauf bleibt...
Anbieter der Immobilie

Online-ID: 2fjlj52
Referenznummer: DDW 7630
Finde Angebote wie dieses
Hier geht es zu unserem Impressum, den Allgemeinen Geschäftsbedingungen, den Hinweisen zum Datenschutz und nutzungsbasierter Online-Werbung.