
Dr. Holzgrabe Immobilien
Herr Harry Holzgrabe
044 ···
Nr. anzeigenPreise & Kosten
Provision für Käufer
3,57 % inkl. MwSt.
Lage
Die Immobilie befindet sich im Zentrum des Kurortes Bad Zwischenahn, nahe gelegen am Zwischenahner Meer.
Fußläufig erreichbar liegt die mit Innenstadt, mit langen Einkaufspassagen und zahlreichen Restaurants. Ebenso besteht eine gute Anbindung zu Supermärkten, Ärtzten, Apotheken und weitere Einrichtungen des täglichen...
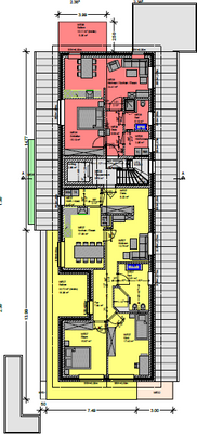
Die Wohnung
Wohnungslage
Dachgeschoss
Wohnanlage
Energie & Heizung
Warum sehe ich diese Anzeige? – Du siehst diese Anzeige basierend auf Ihrer Navigation auf unserer Website und den Suchkriterien, die du verwendet hast.
Energieausweis: für diesen Gebäudetyp nicht notwendig
Weitere Energiedaten
Heizungsart
Fußbodenheizung, Luft-/Wasser-Wärmepumpe
Details
Objektbeschreibung
***Exklusive niedrigstenergie Neubauwohnung KfW 40 in zentrumsnaher Toplage von Bad Zwischenahn - 5 % Afa + KFW Kredit - Überschuss von bis zu 200 € pro Monat - inkl. Wärmepumpe + PV-Anlage - Schlüsselfertig*** JETZT SICHERN!!!
Für Investoren*: Aufschließen, Vermieten und direkt pro Monat bis zu 200 € Überschuss pro...
Ausstattung
Die Highlights noch einmal im Überblick:
* Schlüsselfertig
* KFW Kredit 100.000 € pro Wohnung
* KFW40 inkl. Wärmepumpe und inkl. 16,2kWp Photovoltaikanlage mit 16,6kWh Speicher
* dezentrale Lüftungsanlagen in allen Wohnungen
* Fußbodenheizung und Raumthermostat in jedem Wohnraum (Beheizung mit...
Weitere Informationen
Sonstiges
Sonstiges
Fragen zu unseren Angeboten beantworten wir Ihnen gerne per Email oder unter unserer angegebenen Telefonnummer. Wir bitten um Verständnis dafür, dass wir Informationen zu unseren Objekten nur erteilen, wenn Sie bei Ihrer Anfrage Ihren Namen, Anschrift, Telefonnummer und ggf. Ihre E-Mail-Adresse...
Dokumente
Anbieter der Immobilie
Online-ID: 2fjac5u
Referenznummer: RD15DG7
Finde Angebote wie dieses
Hier geht es zu unserem Impressum, den Allgemeinen Geschäftsbedingungen, den Hinweisen zum Datenschutz und nutzungsbasierter Online-Werbung.