
Immobilien- und Gutachterbüro Matthias Wessmann
Team Vertrieb
059 ···
Nr. anzeigenPreise & Kosten
Kaution
2 KM
Warum sehe ich diese Anzeige? – Du siehst diese Anzeige basierend auf Ihrer Navigation auf unserer Website und den Suchkriterien, die du verwendet hast.
Lage
Tolle Symbiose aus Ruhe und Zentralität zwischen Marktplatz und Altem Hafen in Lingen – und nur ein Sprung zum Dortmund-Ems-Kanal, perfekt zum Spazierengehen, Joggen oder einfach zum Erholen.
Das Gesundheitszentrum Medicus Wesken, das Krankenhaus, der Lingener Marktplatz sowie zahlreiche Einkaufsmöglichkeiten befinden sich...
Die Wohnung
Kategorie
Maisonette
Wohnungslage
1. Geschoss
Bezug
sofort
Wohnanlage
Energie & Heizung
Warum sehe ich diese Anzeige? – Du siehst diese Anzeige basierend auf Ihrer Navigation auf unserer Website und den Suchkriterien, die du verwendet hast.
Weitere Energiedaten
Energieträger
Gas
Heizungsart
Etagenheizung
Details
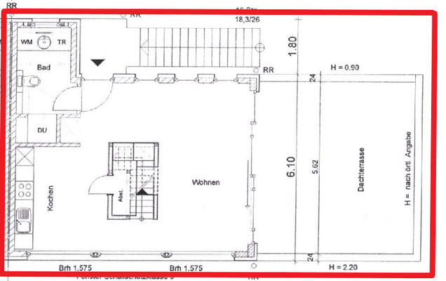
Objektbeschreibung
In einer der wohl besten Innenstadtlagen Lingens wird diese hochwertig ausgestattete 2-Zimmer-Wohnung frei.
Die Wohnung verfügt über ein großes, helles Wohn-/Esszimmer mit offener Küche inklusive Einbauküche, ein Maisonette-Schlafzimmer sowie ein Tageslichtbad mit großer, ebenerdiger Dusche und Anschlüssen für...
Ausstattung
- großes, helles Wohn-/Esszimmer mit offener Küche inkl. Einbauküche
- Parkettboden
- großzügiges Maisonette-Schlafzimmer mit Schreibtisch und Kommode
- hochwertige Einbauschränke
- Tageslichtbad mit großer, ebenerdiger, verglaster Dusche
- sonnige und große Dachterrasse
- großformatige, bodentiefe...
Weitere Informationen
Besichtigungstermine
Bitte melden Sie über das Kontaktformular und senden Sie uns einige Infos zu, damit wir dem Vermieter im Vorfeld einige Informationen zu Ihrer Bewerbung geben können, wie beispielsweise über die Personenanzahl, Ihr Einkommen und ob Sie Haustiere besitzen.
Nach dem Eingang der Selbstauskunft...
Anbieter der Immobilie
Online-ID: 2fhqk5a
Finde Angebote wie dieses
Hier geht es zu unserem Impressum, den Allgemeinen Geschäftsbedingungen, den Hinweisen zum Datenschutz und nutzungsbasierter Online-Werbung.