
ÖRAG Immobilien Vermittlung GmbH
+43 ···
Nr. anzeigenPreise & Kosten
Provision für Käufer
provisionsfrei
Lage
Die Schimmelgasse besticht durch ihre exzellente Lage, denn sie ist nur 15 Minuten vom Wiener Stadtzentrum entfernt.
Die optimale Anbindung an das Verkehrsnetz macht sowohl den Flughafen Wien-Schwechat als auch sämtliche Hotspots der Stadt schnell und bequem erreichbar.
Einkaufsmöglichkeiten, Freizeitanlagen...
Die Wohnung
Wohnungslage
Erdgeschoss
Bezug
Q1/2026
Wohnanlage
Energie & Heizung
Warum sehe ich diese Anzeige? – Du siehst diese Anzeige basierend auf Ihrer Navigation auf unserer Website und den Suchkriterien, die du verwendet hast.
Heizwärmebedarf (HWB)
27,80 kWh/(m²·a)
Gesamtenergieeffizienz (fGEE)
0,64
Weitere Energiedaten
Heizungsart
Fußbodenheizung
Details
Objektbeschreibung
Kurzbeschreibung
Ihre Adresse für modernes, urbanes und nachhaltiges Wohnen
Objekt
Ihre Adresse für modernes, urbanes und nachhaltiges Wohnen
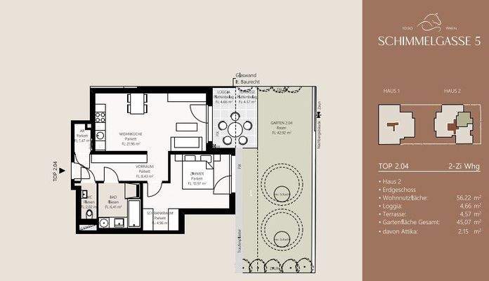
Diese stilvolle 2-Zimmer-Wohnung im Erdgeschoss verfügt über eine Wohnfläche von ca. 55 m². Sie umfasst eine großzügige Wohnküche, ein Schlafzimmer, ein Badezimmer...
Ausstattung
Ob Single, Paar oder Kleinfamilie - das Projekt mit 2 Baukörpern spricht all jene an, die urbanes Wohnen in Perfektion suchen. Die Wohnungen sind sorgfältig gestaltete Lebensräume, die mit Fußbodenheizung und raumhohen Fenstern für ein offenes, helles Wohngefühl sorgen.
Hier verschmelzen Funktionalität und Ästhetik zu...
Preisinformation
1 Tiefgaragenstellplatz, Kaufpreis: 40.000,00 EUR
Weitere Informationen
Sonstiges
Wir sind eine Tochtergesellschaft der ÖRAG-Österreichische Realitäten AG, Wien, genannt ÖRAG, und es besteht daher unter Umständen ein sonstiges wirtschaftliches Naheverhältnis im Sinne des Maklergesetzes zur ÖRAG und ihren anderen Tochtergesellschaften in Österreich. Das Naheverhältnis zur ÖRAG ergibt sich zB...
Anbieter der Immobilie
Online-ID: 2fbpg5v
Referenznummer: 109240594/28
Finde Angebote wie dieses
Günstige Immobilienfinanzierung einfach online berechnen
Persönliches Angebot berechnenWarum sehe ich diese Werbung? – Du siehst diese Werbung basierend auf Deiner Navigation auf unserer Website und der von Dir verwendeten Suchkriterien.
Diese Werbung wird bezahlt von durchblicker
Werbung melden
Hier geht es zu unserem Impressum, den Allgemeinen Geschäftsbedingungen, den Hinweisen zum Datenschutz und nutzungsbasierter Online-Werbung.