

Suprimmo AG
Frau Adriana Nikolova
004 ···
Nr. anzeigenPreise & Kosten
Provision für Käufer
Bitte beachte, das Angebot kann bei Vertragsabschluss die Zahlung einer Provision beinhalten. Weitere Informationen erhältst Du vom Anbieter.
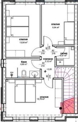
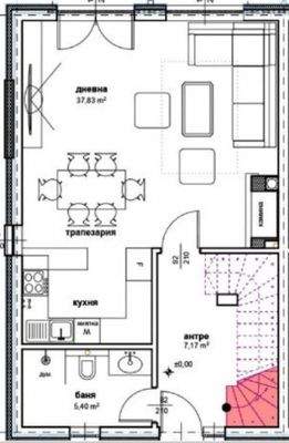
Das Haus
Kategorie
Reihenmittelhaus
Details
Weitere Informationen
Sonstiges
Der Text wurde ins Deutsche mithilfe einer automatischen Software übersetzt und es ist möglich, dass er einige Ungenauigkeiten enthält. Für eine korrekte Beschreibung und aktuelle Informationen zur Immobilie wenden Sie sich bitte an unseren Makler!
Wir präsentieren ein Reihenhaus in einer geschlossenen...
Anbieter der Immobilie

Online-ID: 2f7nr5a
Referenznummer: IMW-124017
Finde Angebote wie dieses
Hier geht es zu unserem Impressum, den Allgemeinen Geschäftsbedingungen, den Hinweisen zum Datenschutz und nutzungsbasierter Online-Werbung.