
RUHR REAL GmbH
Herr Leon Ostermann
+49 ···
Nr. anzeigenPreise & Kosten
Provision für Mieter
provisionsfrei
Warum sehe ich diese Anzeige? – Du siehst diese Anzeige basierend auf Ihrer Navigation auf unserer Website und den Suchkriterien, die du verwendet hast.
Lage
Die Immobilie befindet sich in der Wittener Innenstadt, vis-a-vis mit dem Rathaus. Zahlreiche Einzelhandelsbetrieben, Nahversorgungsmöglichkeiten und gastronomischen Betrieben liegen unmittelbar am Objekt. Die Autobahnen A43 & 448 sind in wenigen Minuten per PKW erreichbar. Öffentliche Verkehrsmittel sind fußläufig zu...
Büro-/Praxisfläche
Kategorie
Bürofläche
Baujahr
2001
Bezug
Nach Vereinbarung
Derzeitige Nutzung
frei
Energie & Heizung
Warum sehe ich diese Anzeige? – Du siehst diese Anzeige basierend auf Ihrer Navigation auf unserer Website und den Suchkriterien, die du verwendet hast.
Weitere Energiedaten
Energieträger
Gas
Details
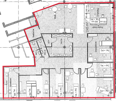
Objektbeschreibung
Die Immobilie befindet sich mitten in der Wittener Innenstadt und besticht somit durch ihre exzellente Anbindung. Auf verschiedenen Geschossen des Gebäudes befinden sich mehrere zur Disposition stehende, moderne Büroflächen. Zudem verfügt das Gebäude über eine genehmigte Praxis- und Gastronomiefläche.
Die Räume sind hell...
Ausstattung
. Bodenbelag: Nach Absprache
. EDV-Verkabelung: Kat 6a - Kat 7
. Kabelführung: Bodentanks
. Sonnenschutz: Außenliegend, elektrisch & innenliegend, manuell
. Teeküche: Zum Teil voll ausgestattet
. Beleuchtung: Pendelleuchten
Preisinformation
Nettokaltmiete: 7,00 EUR
Weitere Informationen
Sonstiges
Es gelten ausschließlich unsere AGB (www.ruhr-real.de/agb). Wir möchten Sie darauf hinweisen, dass die Angaben ausschließlich auf den uns vom Eigentümer übermittelten Unterlagen und Informationen basieren. Für Richtigkeit und Vollständigkeit übernehmen wir keine Gewähr. Zwischenvermietung...
Anbieter der Immobilie

RUHR REAL GmbH
Holsterhauser Platz 2, 45147 Essen
Online-ID: 2f3q35b
Referenznummer: 3572/E3
Finde Angebote wie dieses
Hier geht es zu unserem Impressum, den Allgemeinen Geschäftsbedingungen, den Hinweisen zum Datenschutz und nutzungsbasierter Online-Werbung.