

CUBION Immobilien AG
Herr Niklas Klein
+49 ···
Nr. anzeigenPreise & Kosten
Provision für Mieter
provisionsfrei
Warum sehe ich diese Anzeige? – Du siehst diese Anzeige basierend auf Ihrer Navigation auf unserer Website und den Suchkriterien, die du verwendet hast.
Lage
Seit 1995 hat sich das Technologie-Quartier zu einer führenden Adresse für technologieorientierte Unternehmen und deren Dienstleister entwickelt. In direkter Nähe zur Ruhr-Universität und mit perfekter Anbindung an die A43, A44, A448 und A40 bietet der Standort exzellente Rahmenbedingungen für Forschung, Entwicklung und...
Büro-/Praxisfläche
Baujahr
2028
Bezug
2028
Details
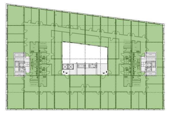
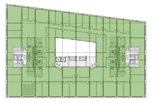
Objektbeschreibung
Folgende Flächen stehen derzeit zur Disposition:
Erdgeschoss: ca. 1.738 m²
1. Obergeschoss: ca. 1.613 m²
2. Obergeschoss: ca. 807 m²
2. Obergeschoss: ca. 806 m²
3. Obergeschoss: ca. 807 m²
3. Obergeschoss: ca. 806 m²
4. Obergeschoss: ca. 1.417 m²
5. Obergeschoss: ca. 1.269 m²
Summe: ca...
Ausstattung
Bodenbelag: nach Mieterwunsch
Kabelführung: Bodentanks
Kühlung: optional möglich
Sonnenschutz: Raffstoren außen (elektrisch)
Küche: Anschlüsse vorinstalliert
Beleuchtung: nach Mieterwunsch
Aufzug: Personenaufzug
Empfang: optional möglich
Barrierearm: ja
Baujahr: 2026
Parkplätze: Außenstellplätze
Weitere Informationen
Sonstiges
GEG 2020: Ein Energieausweis liegt zurzeit nicht vor.
Dieses Angebot ist provisionsfrei für den Mieter!
Alle Informationen in diesem Exposé beruhen auf Angaben, die wir vom Vermieter erhalten haben. Für Richtigkeit und Vollständigkeit übernehmen wir keine Gewähr. Zwischenvermietung vorbehalten...
Anbieter der Immobilie

CUBION Immobilien AG
Akazienallee 65, 45478 Mülheim

Online-ID: 2ev955a
Referenznummer: 441/G1/E3
Finde Angebote wie dieses
Hier geht es zu unserem Impressum, den Allgemeinen Geschäftsbedingungen, den Hinweisen zum Datenschutz und nutzungsbasierter Online-Werbung.