
3SI Makler GmbH
Frau Christina Radel
+43 ···
Nr. anzeigenPreise & Kosten
Provision für Käufer
3% des Kaufpreises zzgl. 20% USt.
Lage
Kagraner Platz / Alte Donau / Donauzentrum
Die Wohnung
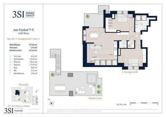
Wohnungslage
3. Geschoss (Dachgeschoss)
Wohnanlage
Energie & Heizung
Warum sehe ich diese Anzeige? – Du siehst diese Anzeige basierend auf Ihrer Navigation auf unserer Website und den Suchkriterien, die du verwendet hast.
Heizwärmebedarf (HWB)
34,00 kWh/(m²·a)
Weitere Energiedaten
Heizungsart
Fußbodenheizung, Luft-/Wasser-Wärmepumpe
Details
Objektbeschreibung
THE LIBERTY - AM FREIHOF
* 36 exklusive Eigentumswohnungen & 2 Townhouses
* 2 bis 4 Zimmer mit ca. 33 bis 116 m² Wohnfläche
* Attraktive Freiflächen bei jeder Einheit
* Hauseigene Tiefgarage
* Kinderwagenraum & Kellerabteile
Das Gebäude wird umweltfreundlich und...
Weitere Informationen
Stichworte
Tiefgarage vorhanden, Süd-West-Balkon/Terrasse, Fahrradraum, Nutzfläche: 142,75 m², Anzahl der Badezimmer: 1, Anzahl der separaten WCs: 1, Anzahl Terrassen: 2, Balkon-Terrassen-Fläche: 45,07 m², Bundesland: Wien, 4 Etagen, Wohnungsnr.: 18
Dokumente
Anbieter der Immobilie
3SI Makler GmbH
Tegetthoffstraße 7, 1010 Wien
Online-ID: 2e2395c
Referenznummer: OBGC20240509231350034efda20978c
Finde Angebote wie dieses
Günstige Immobilienfinanzierung einfach online berechnen
Persönliches Angebot berechnenWarum sehe ich diese Werbung? – Du siehst diese Werbung basierend auf Deiner Navigation auf unserer Website und der von Dir verwendeten Suchkriterien.
Diese Werbung wird bezahlt von durchblicker
Werbung melden
Hier geht es zu unserem Impressum, den Allgemeinen Geschäftsbedingungen, den Hinweisen zum Datenschutz und nutzungsbasierter Online-Werbung.