
Jones Lang LaSalle SE - Office Leasing Hannover
Herr Sebastian Roth
+49 ···
Nr. anzeigenPreise & Kosten
Provision für Mieter
provisionsfrei
Warum sehe ich diese Anzeige? – Du siehst diese Anzeige basierend auf Ihrer Navigation auf unserer Website und den Suchkriterien, die du verwendet hast.
Lage
Diese Liegenschaft befindet sich am Rande des Stadtteils Vahrenwald-List, im Norden von Hannover. Durch die Nähe zur Vahrenwalder Straße, eine der Hauptverkehrsachsen Hannovers, können sowohl die Innenstadt, als auch die A2 in wenigen Minuten erreicht werden. 3 Gehminuten entfernt befindet sich der U-Bahnhof Großer...
Büro-/Praxisfläche
Kategorie
Bürofläche
Baujahr
1995
Bezug
Auf Anfrage
Energie & Heizung
Warum sehe ich diese Anzeige? – Du siehst diese Anzeige basierend auf Ihrer Navigation auf unserer Website und den Suchkriterien, die du verwendet hast.
Wärme
Strom
Energieausweistyp
Bedarfsausweis
Gebäudetyp
Nicht-Wohngebäude
Gültigkeit
20.11.2018 bis 19.11.2028
Endenergiebedarf (Wärme)
72,00 kWh/(m²·a)
Endenergiebedarf (Strom)
4,00 kWh/(m²·a)
Details
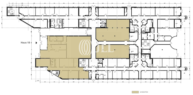
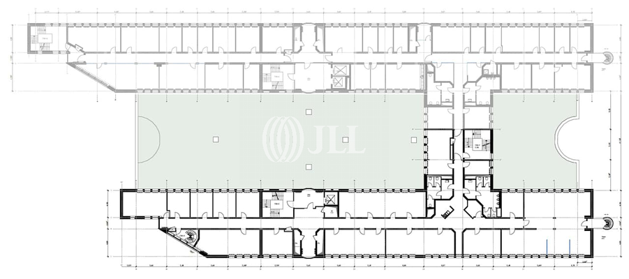
Objektbeschreibung
Die Waterfront an der Gradestraße in Hannover vereint erstklassige Büroflächen mit einer seltener Lage am Wasser. Moderne Architektur, flexible Grundrisse und hochwertige Ausstattung zeichnen diesen Bürokomplex aus.
Namhafte Mieter aus dem Transportwesen, der Telekommunikation und dem Hochbau bekräftigen die...
Preisinformation
445 Stellplätze, Miete je: 25,00 EUR
Weitere Informationen
Stichworte
Gesamtfläche: 6.220,24 m², modernisiert: 2021
Sonstiges: EDV-Verkabelung
Anbieter der Immobilie
Jones Lang LaSalle SE - Office Leasing Hannover
Georgstraße 8b, 30159 Hannover
Online-ID: 2dh4853
Referenznummer: 4@of46535@14@0
Finde Angebote wie dieses
Hier geht es zu unserem Impressum, den Allgemeinen Geschäftsbedingungen, den Hinweisen zum Datenschutz und nutzungsbasierter Online-Werbung.