
Mayer & Dau Immobilien GmbH
Herr Alvaro Sanchez Boyero
003 ···
Nr. anzeigenPreise & Kosten
Provision für Käufer
Bitte beachte, das Angebot kann bei Vertragsabschluss die Zahlung einer Provision beinhalten. Weitere Informationen erhältst Du vom Anbieter.
Lage
Colonia de Sant Pere, ist ein beschaulicher Ort im Nordosten der Insel, der der Gemeinde Artá angehört. Er liegt am Fuße einer breiten Esplanade, die im Norden durch die Bucht von Alcudia und im Nordosten durch die Sierra de Levante umgeben ist. Die Orte Artà und Can Picafort sind in nur wenigen Autominuten zu erreichen. In...
Das Haus
Kategorie
Einfamilienhaus
Baujahr
2023
Bezug
2024
Energie & Heizung
Warum sehe ich diese Anzeige? – Du siehst diese Anzeige basierend auf Ihrer Navigation auf unserer Website und den Suchkriterien, die du verwendet hast.
Weitere Energiedaten
Haustyp
Massivhaus
Details
Objektbeschreibung
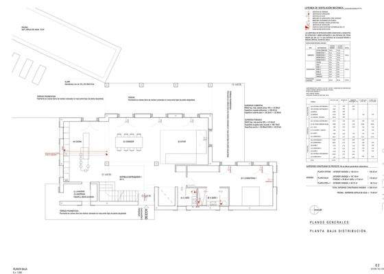
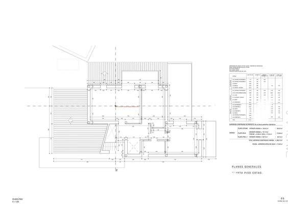
Diese wunderschöne Neubau Finca mit spektakulärem Meerblick wird im verträumten Ort Colònia de Sant Pere konstruiert. Die Villa verfügt über 420 Quadratmeter Wohnfläche, verteilt auf 4 Schlafzimmer, 4 Badezimmer, Küche, Wohnzimmer, einem Fitnessraum, 2 Terrassen und einem 75 Meter langen Pool. Die Immobilie besteht aus...
Ausstattung
* Fußbodenheizung
* Klimaanlage
* Parkplatz
* Pool
* Sat TV
* PVC Fenster
* Meerblick
* Wärmepumpe
* öffentlicher Wasser- und Stromanschluss
* Brunnen
Weitere Informationen
Stichworte
Stellplatz vorhanden, Nutzfläche: 420,00 m², Anzahl der Schlafzimmer: 4, Anzahl der Badezimmer: 4, Anzahl der separaten WCs: 1, Anzahl Terrassen: 2, Kellerfläche: 130,45 m², Bundesland: Balearische_Inseln, Distanz zum Flughafen: 70.00, Distanz zum Meer: 2.00
Anbieter der Immobilie
Mayer & Dau Immobilien GmbH
Am Hogen Hagen 31, 26160 Bad Zwischenahn
Online-ID: 2d92x5b
Referenznummer: 7368
Finde Angebote wie dieses
Hier geht es zu unserem Impressum, den Allgemeinen Geschäftsbedingungen, den Hinweisen zum Datenschutz und nutzungsbasierter Online-Werbung.