
Dianium Inmo-Concept S.L.
Frau Cornelia Grün
+49 ···
Nr. anzeigenPreise & Kosten
Provision für Käufer
Bitte beachte, das Angebot kann bei Vertragsabschluss die Zahlung einer Provision beinhalten. Weitere Informationen erhältst Du vom Anbieter.
Lage
Fasoula ist ein idyllisches Dorf auf der Insel Zypern. Gelegen im Bezirk Limassol, ist es von den belebten Touristenzentren entfernt und bietet einen Einblick in das authentische zypriotische Leben. Umgeben von sanften Hügeln und reichlich Grün, sind die Landschaften hier besonders in den frühen Morgenstunden und während des...
Das Haus
Kategorie
Villa
Energie & Heizung
Warum sehe ich diese Anzeige? – Du siehst diese Anzeige basierend auf Ihrer Navigation auf unserer Website und den Suchkriterien, die du verwendet hast.
Weitere Energiedaten
Heizungsart
Fußbodenheizung
Details
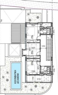
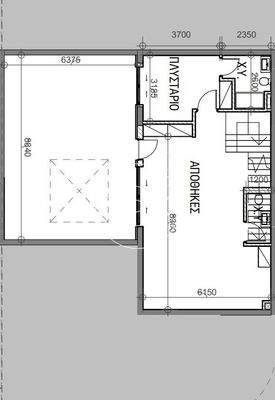
Objektbeschreibung
Das Projekt bietet eine Mischung aus ruhiger natürlicher Schönheit und malerischer Landschaft, was es ideal für Bewohner macht, die einen ruhigen Rückzugsort suchen und dennoch leichten Zugang zu den nahe gelegenen städtischen Annehmlichkeiten haben.
Das zeitgenössische Design der Immobilie bietet zweistöckige...
Ausstattung
Flughafennähe, Strandnähe, Nähe dem Hafen, Golfplatznähe, Stadtnähe, Panoramablick
Energieklasse A, geschlossene Gemeinschaft, Gästetoilette, Investitionsmöglichkeit, offene Küche, privater Parkplatz (überdacht), privater Außenbereich, privater Pool, Vorkehrung für Klimaanlage, Fußbodenheizung
Weitere Informationen
Stichworte
Carport vorhanden, Gesamtfläche: 419,00 m², Anzahl der Schlafzimmer: 3, Anzahl der Badezimmer: 3
Anbieter der Immobilie
Dianium Inmo-Concept S.L.
Avenida Marina Alta 56, 03750 Pedreguer
Online-ID: 2d4fn5h
Referenznummer: DIC.12971
Finde Angebote wie dieses
Hier geht es zu unserem Impressum, den Allgemeinen Geschäftsbedingungen, den Hinweisen zum Datenschutz und nutzungsbasierter Online-Werbung.