

Jones Lang LaSalle SE - Office Leasing Düsseldorf
Frau Janice Lehmann
+49 ···
Nr. anzeigenPreise & Kosten
Provision für Mieter
provisionsfrei
Warum sehe ich diese Anzeige? – Du siehst diese Anzeige basierend auf Ihrer Navigation auf unserer Website und den Suchkriterien, die du verwendet hast.
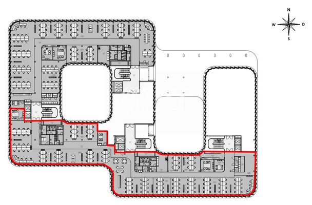
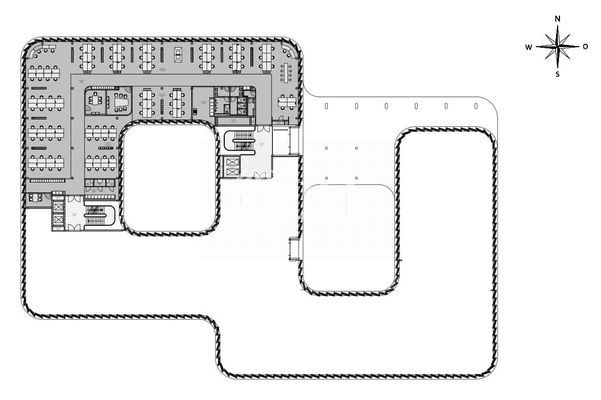
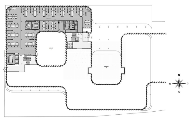
Lage
Der Büroneubau MIZAL befindet sich südlich vom Düsseldorfer Medienhafen und grenzt unmittelbar an den Hauptsitz von QVC. Durch die hervorragende verkehrliche Anbindung sind alle wichtigen Autobahnen über den Rheinufertunnel sowie den Südring in wenigen Minuten erreichbar.
Büro-/Praxisfläche
Kategorie
Bürofläche
Baujahr
2021
Bezug
Sofort
Energie & Heizung
Warum sehe ich diese Anzeige? – Du siehst diese Anzeige basierend auf Ihrer Navigation auf unserer Website und den Suchkriterien, die du verwendet hast.
Wärme
Strom
Energieausweistyp
Bedarfsausweis
Gebäudetyp
Nicht-Wohngebäude
Wesentliche Energieträger
FERN
Gültigkeit
15.12.2021 bis 14.12.2031
Endenergiebedarf (Wärme)
79,00 kWh/(m²·a)
Endenergiebedarf (Strom)
31,00 kWh/(m²·a)
Weitere Energiedaten
Energieträger
Fernwärme
Details
Objektbeschreibung
Das MIZAL besticht durch ein Stadtprägendes Hochhaus im östlichen Teil des Grundstücks. Daran Angrenzend befinden sich zwei quadratische Gebäudeteile mit hoher Flächeneffizienz. Das Projekt wird Landschaftsplanerisch aufwendig gestaltet, um eine hohe Aufenthaltsqualität zu schaffen.
Ausstattung
- mit BDA-Award ausgezeichnet
- Sichtbetondecke
Weitere Informationen
Stichworte
Gesamtfläche: 4.905,00 m²
Sonstiges: EDV-Verkabelung
Anbieter der Immobilie
Jones Lang LaSalle SE - Office Leasing Düsseldorf
Dreischeibenhaus 1, 40211 Düsseldorf

Online-ID: 2cur25g
Referenznummer: 4@of53145@14@0
Finde Angebote wie dieses
Hier geht es zu unserem Impressum, den Allgemeinen Geschäftsbedingungen, den Hinweisen zum Datenschutz und nutzungsbasierter Online-Werbung.