
Jones Lang LaSalle SE - Office Leasing Frankfurt
Frau Isha Pundir
+49 ···
Nr. anzeigenPreise & Kosten
Provision für Mieter
provisionsfrei
Warum sehe ich diese Anzeige? – Du siehst diese Anzeige basierend auf Ihrer Navigation auf unserer Website und den Suchkriterien, die du verwendet hast.
Lage
Eine Tankstelle befindet sich in der Nähe.
Büro-/Praxisfläche
Kategorie
Bürofläche
Bezug
Sofort
Energie & Heizung
Warum sehe ich diese Anzeige? – Du siehst diese Anzeige basierend auf Ihrer Navigation auf unserer Website und den Suchkriterien, die du verwendet hast.
Wärme
Strom
Energieausweistyp
Verbrauchsausweis
Gebäudetyp
Nicht-Wohngebäude
Gültigkeit
09.05.2014 bis 09.05.2024
Endenergieverbrauch (Wärme)
76,47 kWh/(m²·a)
Endenergieverbrauch (Strom)
8,91 kWh/(m²·a)
Details
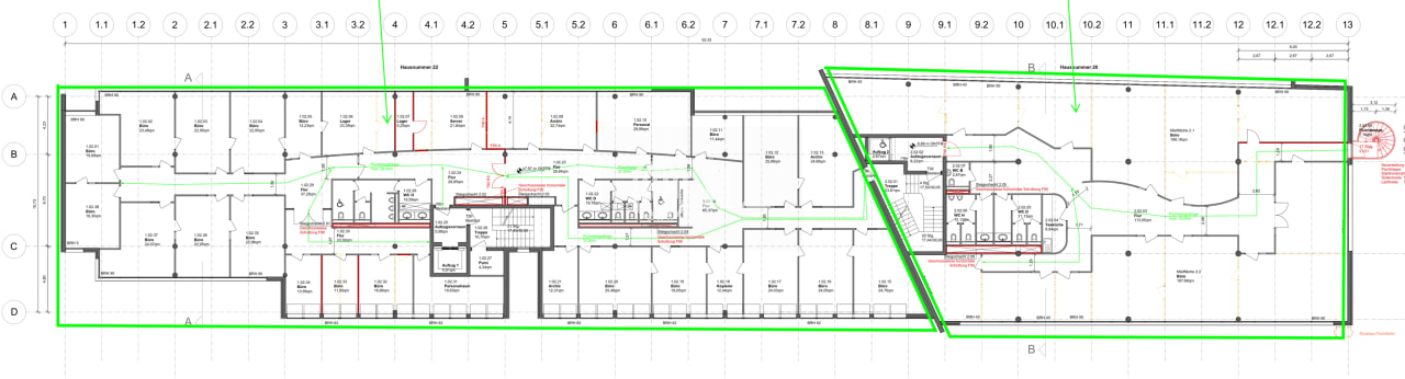
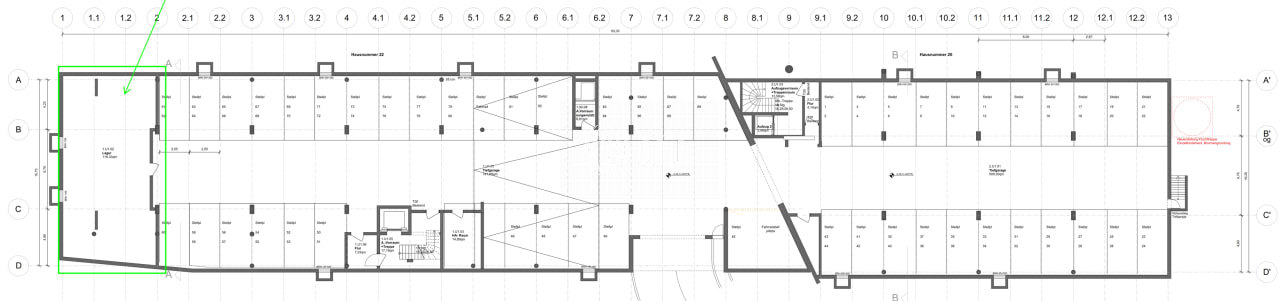
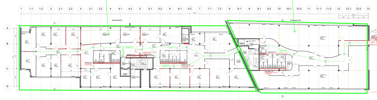
Objektbeschreibung
Bei der Liegenschaft handelt es sich um ein ansprechendes und repräsentatives 5-geschossiges Gebäude. Die Aufteilung der Büroeinheiten erfolgt gemäß den Wünschen des künftigen Nutzers. Ein spezielles Kühlsystem sorgt für eine Abkühlung mit einer Differenz bis zu 6°C.
Weitere Informationen
Stichworte
Gesamtfläche: 2.874,00 m²
Sonstiges: EDV-Verkabelung
Anbieter der Immobilie
Jones Lang LaSalle SE - Office Leasing Frankfurt
Bockenheimer Landstraße 55, 60325 Frankfurt
Online-ID: 2culs58
Referenznummer: 4@of2880@14@0
Finde Angebote wie dieses
Hier geht es zu unserem Impressum, den Allgemeinen Geschäftsbedingungen, den Hinweisen zum Datenschutz und nutzungsbasierter Online-Werbung.