
Garda Haus Srl
Frau Agenzia GH Estate Como
003 ···
Nr. anzeigenPreise & Kosten
Provision für Käufer
ja maklerprovision im Preis nicht inbegriffen zzgl. MwSt.
Lage
Die Wahl dieser exklusiven Residenz in Sala Comacina bedeutet, in die poetischste und zurückhaltendste Atmosphäre des Comer Sees einzutauchen, wo sich die Eleganz eines raffinierten Designs mit der Schönheit einer einzigartigen Landschaft verbindet, die vom zeitlosen Charme der Isola Comacina beherrscht wird. Von den großen...
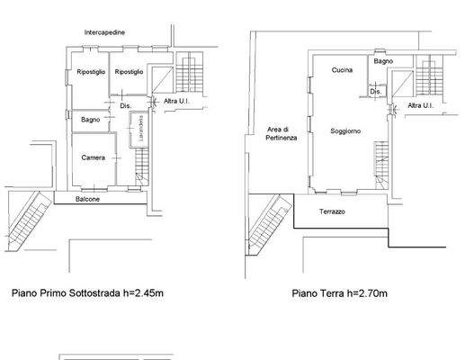
Die Wohnung
Wohnungslage
Erdgeschoss
Wohnanlage
Energie & Heizung
Warum sehe ich diese Anzeige? – Du siehst diese Anzeige basierend auf Ihrer Navigation auf unserer Website und den Suchkriterien, die du verwendet hast.
Energieausweistyp
Bedarfsausweis
Gebäudetyp
Wohngebäude
Baujahr laut Energieausweis
2019
Gültigkeit
bis 25.03.2019
Endenergiebedarf
140,59 kWh/(m²·a)
Weitere Energiedaten
Heizungsart
Fußbodenheizung
Details
Objektbeschreibung
Die Wahl dieser exklusiven Residenz in Tremezzina bedeutet, in eine Atmosphäre von seltener Schönheit einzutauchen, in der sich die Harmonie zwischen Natur und Architektur mit dem ikonischen Blick auf die Isola Comacina verbindet. Eingebettet in ein raffiniertes Wohnumfeld mit Swimmingpools und Wellnessbereichen stellt diese...
Weitere Informationen
Sonstiges
Wir begleiten Sie nach Terminvereinbarung persönlich zu den Objekten und stehen Ihnen während des gesamten Prozesses des Immobilienerwerbs als starker und kompetenter Partner zur Seite. Mit uns gehen Sie keine Kompromisse ein und überlassen nichts dem Zufall. Umfassender Service ist für uns nicht nur ein Wort...
Anbieter der Immobilie
Garda Haus Srl
Via Meucci 77, 25080 PADENGHE SUL GARDA
Online-ID: 2cufn5t
Referenznummer: 54572
Finde Angebote wie dieses
Hier geht es zu unserem Impressum, den Allgemeinen Geschäftsbedingungen, den Hinweisen zum Datenschutz und nutzungsbasierter Online-Werbung.