
3SI Makler GmbH
Herr Lucas Carlsen
+43 ···
Nr. anzeigenPreise & Kosten
Provision für Käufer
3% des Kaufpreises zzgl. 20% USt.
Lage
Herz-Jesu Krankenhaus / Oberzellergasse
Die Wohnung
Wohnanlage
Energie & Heizung
Warum sehe ich diese Anzeige? – Du siehst diese Anzeige basierend auf Ihrer Navigation auf unserer Website und den Suchkriterien, die du verwendet hast.
Heizwärmebedarf (HWB)
39,00 kWh/(m²·a)
Weitere Energiedaten
Energieträger
Fernwärme
Details
Objektbeschreibung
ZUKUNFT BERÜHRT GESCHICHTE
* 26 exklusive Eigentumswohnungen
* davon 4 traumhafte Dachgeschoßwohnungen
* 1 exklusives Penthouse mit 3 Terrassen
* 1 bis 4 Zimmer mit 32 bis 187 m² Wohnfläche
* Attraktive Balkone, Terrassen und Gärten
* Revitalisierter Stilaltbau mit moderner Technik und...
Weitere Informationen
Stichworte
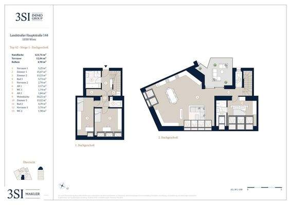
Süd-West-Balkon/Terrasse, Anzahl der Badezimmer: 2, Anzahl der separaten WCs: 2, Anzahl Balkone: 1, Anzahl Terrassen: 1, Balkon-Terrassen-Fläche: 16,96 m², Bundesland: Wien, 7 Etagen, Wohnungsnr.: 42
TV: Kabelanschluss, DVBT
Dokumente
Anbieter der Immobilie
3SI Makler GmbH
Tegetthoffstraße 7, 1010 Wien
Online-ID: 2clfm5t
Referenznummer: OBGC20231215080141152f100c2340d
Finde Angebote wie dieses
Günstige Immobilienfinanzierung einfach online berechnen
Persönliches Angebot berechnenWarum sehe ich diese Werbung? – Du siehst diese Werbung basierend auf Deiner Navigation auf unserer Website und der von Dir verwendeten Suchkriterien.
Diese Werbung wird bezahlt von durchblicker
Werbung melden
Hier geht es zu unserem Impressum, den Allgemeinen Geschäftsbedingungen, den Hinweisen zum Datenschutz und nutzungsbasierter Online-Werbung.