
Balaton Immobilien NR.1 Kft
Herr Christopher Idler
003 ···
Nr. anzeigenPreise & Kosten
Provision für Käufer
provisionsfrei
Lage
Die meisten unserer Objekte befinden sich in Zala und Somogy zwischen 10- und 50km vom Balaton.
In der Regel sind die preiswerteren Immobilien auch weiter vom Balaton entfernt.
Für genauere Informationen zur Lage und Zustand der Immobilie stehen wir ihnen gerne zur Verfügung.
Über den...
Das Haus
Kategorie
Einfamilienhaus
Geschosse
2 Geschosse
Bezug
Nach VB
Energie & Heizung
Warum sehe ich diese Anzeige? – Du siehst diese Anzeige basierend auf Ihrer Navigation auf unserer Website und den Suchkriterien, die du verwendet hast.
Weitere Energiedaten
Energieträger
Gas, Holz
Heizungsart
Ofen, Zentralheizung
Details
Objektbeschreibung
Zum Verkauf steht ein top renoviertes Einfamilienhaus in guter Lage nur 5 Minuten vom Thermalbad entfernt.
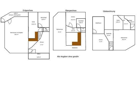
Das Haus kommt mit ca. 160 m² Wohnfläche die sich auf zwei Etagen und einer Gästewohnung aufteilen.
Im Erdgeschoss befindet sich der Eingang, ein Vorraum mit Garderobe, ein Wohnzimmer mit Essplatz, die Küche...
Ausstattung
Strom (400V) – Wasser – Kanal – Gaszentralheizung – Kachelofen – Klimaanlage – Fliesen – Echtholzparkett – Laminat – Einbauschrank – Fliegengitter – Rollläden – Garage – Carport – elektrisches Einfahrtstor – Alarmanlage – Kameras – Obstbäume –
Überdachte Terrasse (ca. 30 m²)
– Die Fassade wird noch fertiggestellt...
Weitere Informationen
Sonstiges
Balaton Immobilien Nr. 1 Kft.
Idler Christopher
Faludi utca 7/1
H-8315 Gyenesdiás
Büro: 0036 83 510 197 (deutsch/ungarisch)
Mobil: 0036 30 153 73 82 (deutsch)
E-Mail: balaton.immobilien.eu@gmail.com
Maklerlizensnummer: PTG 094439
Steuernummer: 14979039-1-20
Eingetragen...
Anbieter der Immobilie
Balaton Immobilien NR.1 Kft
Faludi u. 7/1, H-8315 Gyenesdiás
Online-ID: 2cgkt52
Referenznummer: BIB-23115
Finde Angebote wie dieses
Hier geht es zu unserem Impressum, den Allgemeinen Geschäftsbedingungen, den Hinweisen zum Datenschutz und nutzungsbasierter Online-Werbung.