Willmann & Faller Immobilien

Herr Dieter Willmann

Bingen bei Sigmaringen - barrierefrei-barrierefrei Baubeginn Juli 2026!

€ 328.000
Kaufpreis
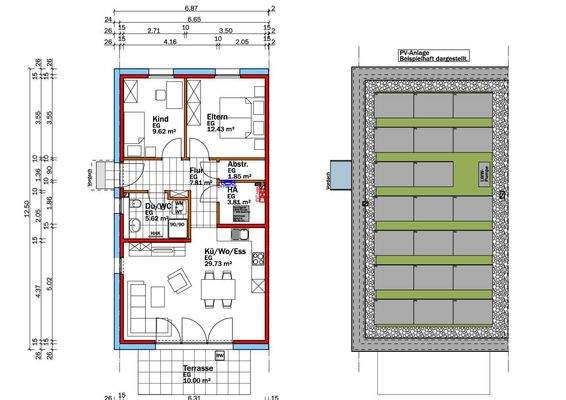
72 m²
Wohnfläche ca.
3,5
Zimmer
255 m²
Grundstücksfl. ca.

Der Anbieter dieses Objekts hat gegenüber der AVIV Germany GmbH als Betreiber dieses Online-Marktplatzes erklärt, nicht als Unternehmer im Sinne des § 1 KSchG zu handeln. Die im Verbraucherschutzrecht der Union verankerten Verbraucherrechte (insbesondere Informationspflichten und Rücktritts- bzw. Widerrufsrechte) finden auf den Vertrag zwischen dem Anbieter des Objekts und Ihnen (dem Interessenten) keine Anwendung.

Provisionsfrei
Gewerblicher Anbieter

Der Anbieter dieses Objekts hat gegenüber der AVIV Germany GmbH als Betreiber dieses Online-Marktplatzes erklärt, als Unternehmer im Sinne des § 1 KSchG zu handeln.

AdresseStraße nicht freigegeben
72511 Bingen 
Auf Karte ansehen

Preise & Kosten

Kaufpreis € 328.000

Provision für Käufer

provisionsfrei

Lage

In schöner Wohnlage von Bingen, welches nur ca. 4 Kilometer vom Stadtkern Sigmaringen entfernt liegt, errichten wir 18 DHH ohne Keller, ab Juni 2026.
Im Ort gibt es alles für die Erstversorgung, Busanbindung nach Sigmaringen.

Wohnen klein aber fein mit Garten, sich frei fühlen können und bezahlbar ist das Motto...

Mehr anzeigen

Das Haus

Kategorie

Bungalow

Geschosse

1 Geschoss

Baujahr

2026

Bezug

2027

  • Zustand: Neubau
  • nicht unterkellert
  • Terrasse, Garten, Gartenanteil
  • 2 Stellplätze
  • Bad mit Dusche, Gäste-WC
  • Böden: Fliesenboden, Parkett
  • Anschlüsse: DSL-Anschluss, Kabelanschluss
  • barrierefrei

Energie & Heizung

Weitere Energiedaten

Haustyp

KfW 40

Heizungsart

Fußbodenheizung, Luft-/Wasser-Wärmepumpe

Details

Objektbeschreibung

Mit diesem einzigartigen Haustyp versorgen wir in erster Linie die Kunden, die ihren Wohnbedarf verringern möchten, aber nicht in eine Eigentumswohnung ziehen wollen. Unsere Bau Idee beinhaltet dies nachhaltig. Der/die zukünftige/n Bewohner/innen hat/haben ein kleines, barrierefreies Haus in der Größe einer 3,5 Zimmer Wohnung...

Mehr anzeigen

Ausstattung

Alle Häuser sind mit Fußbodenheizung, Parkettboden und schönen Fliesen ausgestattet.
Die Häuser werden schlüsselfertig übergeben. Jedes Haus hat einen eigenen Garten mit Terrasse und 2 Stellplätzen auf dem Grundstück. Garage oder Carport auf Sonderwunsch gegen Aufpreis möglich. Da freut sich auch der Hund oder die Katze...

Mehr anzeigen

Weitere Informationen

KFW Mittel-Abschreibungen
Für Paare oder Alleinerziehende mit einen Kind - Darlehen 300, der KFW Bank möglich.
Beispiel: Kreditsumme bis 220.000.-- EURO zu 1,16%. möglich. 3 Tilgunsfreie Jahre. Laufzeit zwischen 25- und 36 Jahre. Es lohnt sich .......Zinsen können sich aktuell täglich ändern, deshalb immer bei Ihrer...

Mehr anzeigen

Dokumente

file_pdfBingen-Sigmaringen-Zeitblomstrasse-UE-A-2025-03-28angle_rightfile_pdfÜbersichtsplan.pdfangle_rightfile_pdfAnsichten.pdfangle_rightfile_pdfEG - Dach.pdfangle_rightfile_pdfSchnitt.pdfangle_rightfile_pdfWohnflächenberechnung.pdfangle_rightfile_pdfWB Imagebroschuere 2022-web.pdfangle_rightfile_pdfPreislisteaktuell1.pdfangle_rightfile_pdf2025_05_15 Katalog BV Bingen, Zeitblomstraße.pdfangle_rightfile_pdfBaubeschreibung Smart House ohne Keller_28.04.2025angle_rightfile_pdfGrundstücksgrößen.pdfangle_right

Anbieter der Immobilie

Willmann & Faller Immobilien

im Durchschnitt  5,00  Sterne
(bei 1 Bewertungen)

Bundschuhweg 5, 79189 Bad Krozingen

user

Herr Dieter Willmann

Dein Ansprechpartner

Anbieter-Website Anbieter-Profil Anbieter-Impressum

Online-ID: 2bj8e5w

Finde Angebote wie dieses

imageimageimage

Hier geht es zu unserem Impressum, den Allgemeinen Geschäftsbedingungen, den Hinweisen zum Datenschutz und nutzungsbasierter Online-Werbung.