
WiREG - Wirtschaftsförderungs- und Regionalentwicklungsgesellschaft Flensburg/Schleswig mbH
Herr Burkhard Otzen
046 ···
Nr. anzeigenPreise & Kosten
Provision für Käufer
provisionsfrei
Lage
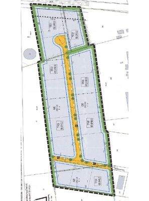
Kropp liegt sehr zentral. Die Autobahn A7 ist nur ca. 7 km entfernt und die beiden Anschlussstellen Jagel oder Owschlag schnell zu erreichen. Das Gewerbegebiet liegt am Ortseingang von Kropp direkt an der B77. Die Städte Rendsburg und Schleswig sind jeweils nur 15 km entfernt, nach Flensburg und Kiel sind es jeweils ca. 50...
Das Grundstück
Kategorie
Gewerbe-Grundstück
Details
Objektbeschreibung
Die zentrale Lage Kropps hat zu einer positiven wirtschaftlichen Entwicklung geführt und den vorhandenen Gewerbepark bereits gefüllt. Aus diesem Grund hat die Gemeinde Kropp weitere 6 ha Gewerbefläche ausgewiesen, um weiteres Entwicklungspotenzial anzubieten. Ansiedlungen mit größerem Flächenbedarf können hier zügig umgesetzt...
Weitere Informationen
Sonstiges
*Für den Knickschutzstreifen wird ein Preis von 25 €/m² berechnet. Zusätzlich ist vom Käufer ein Sicherheitsbetrag in Höhe von 2.000 € zu hinterlegen. Dieser dient der Absicherung möglicher Schäden an Erschließungsanlagen (Straßen, Gehwege, Straßenbeleuchtung, etc.), die während der Bauphase entstehen könnten...
Anbieter der Immobilie
WiREG - Wirtschaftsförderungs- und Regionalentwicklungsgesellschaft Flensburg/Schleswig mbH
Lise-Meitner-Str. 2, 24941 Flensburg
Online-ID: 29nve5f
Referenznummer: 10565
Finde Angebote wie dieses
Hier geht es zu unserem Impressum, den Allgemeinen Geschäftsbedingungen, den Hinweisen zum Datenschutz und nutzungsbasierter Online-Werbung.