
Horn Bauunternehmen GmbH & Co. KG
049 ···
Nr. anzeigenPreise & Kosten
Kaution
zwei Kaltmonatsmieten
Warum sehe ich diese Anzeige? – Du siehst diese Anzeige basierend auf Ihrer Navigation auf unserer Website und den Suchkriterien, die du verwendet hast.
Lage
26842 Ostrhauderfehn (Zentrum Ostrhauderfehn in ca. 800m erreichbar: Einkaufsmöglichkeiten, Bäcker, Gastronomie, Banken, Apotheken, Ärzte, Kindergarten etc., gute Verkehrsanbindung zur B72 und A28, holländische Grenze in 40 km erreichbar)
Ostrhauderfehn liegt im südlichen Ostfriesland, zentral zwischen den Städten Leer...
Das Haus
Kategorie
Doppelhaushälfte
Baujahr
2021
Bezug
01.07.2026
Energie & Heizung
Warum sehe ich diese Anzeige? – Du siehst diese Anzeige basierend auf Ihrer Navigation auf unserer Website und den Suchkriterien, die du verwendet hast.
Weitere Energiedaten
Haustyp
Massivhaus
Energieträger
Gas
Details
Objektbeschreibung
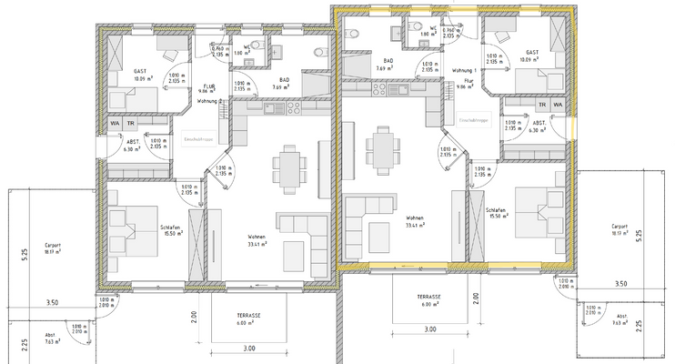
Die Doppelhaushälfte verfügt über 85 m² Wohnfläche sowie einen Carport mit Geräteraum.
Im Erdgeschoss befinden sich ein Schlafzimmer, ein Gäste-/Kinderzimmer, ein Gäste-WC und ein Bad mit ebenerdiger Dusche. Außerdem steht Ihnen eine große Wohnraumküche mit einem Zugang zu Terrasse zur Verfügung. Das Bad und Gäste-WC...
Ausstattung
* Barrierefreies Wohnen mit gehobener Ausstattung
* Fußbodenheizung mit Raumthermostaten in jedem Wohnraum
* Hochwertige Fliesen
* Namenhafte Sanitärausstattung
* Sat- und Lan-Anschlüsse in jedem Wohnraum
* LED-Spots im Flur, Bad und Gäste-WC
* Fensterelemente mit 3-fach-Verglasung
* Elektrische Rollläden...
Weitere Informationen
Sonstiges
Haustierhaltung ist nicht gestattet.
Stichworte
Sonstiges/Wohnen: Dachboden, seniorengerechtes Wohnen
Anbieter der Immobilie
Online-ID: 28rmg54
Finde Angebote wie dieses
Hier geht es zu unserem Impressum, den Allgemeinen Geschäftsbedingungen, den Hinweisen zum Datenschutz und nutzungsbasierter Online-Werbung.