
ISS Communication Services GmbH
Frau Annette Lenz
+49 ···
Nr. anzeigenPreise & Kosten
Kaution
3 MM
Provision für Mieter
provisionsfrei
Warum sehe ich diese Anzeige? – Du siehst diese Anzeige basierend auf Ihrer Navigation auf unserer Website und den Suchkriterien, die du verwendet hast.
Lage
Das Objekt befindet sich in erstklassiger, zentraler Lage zwischen Hauptbahnhof, Rathaus und Schloss, innerhalb des Altstadtkerns. Die Fußgängerzone beginnt direkt vor der Haustür. Die nächste Bushaltestelle befindet sich vor dem Objekt. Die Fahrzeit zum Oldenburger Hauptbahnhof beträgt nur 5 Minuten. Die Anbindung an das...
Büro-/Praxisfläche
Kategorie
Bürofläche
Baujahr
1967
Bezug
kurzfristig
Energie & Heizung
Warum sehe ich diese Anzeige? – Du siehst diese Anzeige basierend auf Ihrer Navigation auf unserer Website und den Suchkriterien, die du verwendet hast.
Wärme
Strom
Energieausweistyp
Verbrauchsausweis
Gebäudetyp
Nicht-Wohngebäude
Baujahr laut Energieausweis
1967
Wesentliche Energieträger
Gas,Strom
Gültigkeit
seit 30.06.2022
Endenergieverbrauch (Wärme)
85,60 kWh/(m²·a)
Endenergieverbrauch (Strom)
185,30 kWh/(m²·a)
Details
Objektbeschreibung
Das repräsentative vier- und fünfgeschossige Büro-/Technikgebäude besteht aus einem Ursprungsbau von 1924, welcher 1967 mit rund 3.000 m² und 1989 mit rund 4.000 m² umfangreich erweitert wurde. Der Gesamtkomplex wurde fortlaufend modernisiert. Nutzerin in dem Objekt ist die Deutsche Telekom AG.
Pkw-Stellplätze können...
Weitere Informationen
Sonstiges
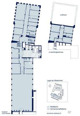
Die Mietfläche befindet sich im 3. Obergeschoss und Zwischengeschoss des Bauteils B/C. Sie wird über die Aufzüge barrierefrei erschlossen.
Diese Räume eignen sich sowohl für eine Büro- und Schulungsflächennutzung als auch für Callcenterzwecke.
Die Fußböden der Mieteinheit sind überwiegend mit...
Dokumente
Anbieter der Immobilie
ISS Communication Services GmbH
Theodorstraße 178, 40472 Düsseldorf
Online-ID: 28lqa5u
Referenznummer: 300000-1-3
Finde Angebote wie dieses
Hier geht es zu unserem Impressum, den Allgemeinen Geschäftsbedingungen, den Hinweisen zum Datenschutz und nutzungsbasierter Online-Werbung.