Dragon Industrie Gewerbe Makler GmbH & Co.KG

Herr Roland Kranz

Büroeinheiten NEUBAU 2025 / 2026 in Achern - zu vermieten

auf Anfrage
Nettomiete
1 600 m²
Bürofläche ca.
ab 250 m²
Teilbare Fläche ca.
k.A.
Zimmer

Der Anbieter dieses Objekts hat gegenüber der AVIV Germany GmbH als Betreiber dieses Online-Marktplatzes erklärt, nicht als Unternehmer im Sinne des § 1 KSchG zu handeln. Die im Verbraucherschutzrecht der Union verankerten Verbraucherrechte (insbesondere Informationspflichten und Rücktritts- bzw. Widerrufsrechte) finden auf den Vertrag zwischen dem Anbieter des Objekts und Ihnen (dem Interessenten) keine Anwendung.

Gewerblicher Anbieter

Der Anbieter dieses Objekts hat gegenüber der AVIV Germany GmbH als Betreiber dieses Online-Marktplatzes erklärt, als Unternehmer im Sinne des § 1 KSchG zu handeln.

AdresseStraße nicht freigegeben
77855 Achern 
Auf Karte ansehen

Preise & Kosten

Nettomiete auf Anfrage

Provision für Mieter

Mieterprovision: 3,57 Monatskaltmieten inkl. MwSt.

Lage

Achern ca. 25.000 EW, Mittelzentrum, liegt geografisch nördl. von Offenburg und südl. von Baden-Baden, direkter Autobahnanschluss BAB 5 Karlsruhe-Basel

Die Immobilie

info

Zu diesem Angebot wurden vom Anbieter keine weiteren Daten hinterlegt. Für weitere Informationen bitte den Anbieter kontaktieren.

Nach Informationen fragen

Details

Objektbeschreibung

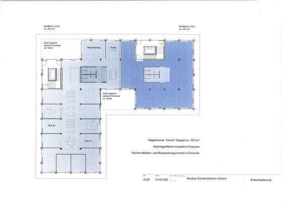
Büroflächen von ca. 250 m² bis ca. 1.600 m² (NEUBAU) im Zentrum von Achern zu vermieten

Das 4-geschossige Bürogebäude wird im Erd- und 1. Obergeschoss von der Sparkasse Offenburg / Ortenau weitestgehend selbst genutzt.

Im 1., 2. und 3. Obergeschoss stehen Mieteinheiten wie folgt zur Verfügung:

1...

Mehr anzeigen

Anbieter der Immobilie

Partner

Dragon Industrie Gewerbe Makler GmbH & Co.KG

im Durchschnitt  4,90  Sterne
(bei 4 Bewertungen)

Robert-Bosch-Str. 2, 77656 Offenburg

user

Herr Roland Kranz

Dein Ansprechpartner

Anbieter-Website Anbieter-Impressum

Online-ID: 27rxa5f

Finde Angebote wie dieses

imageimageimage

Hier geht es zu unserem Impressum, den Allgemeinen Geschäftsbedingungen, den Hinweisen zum Datenschutz und nutzungsbasierter Online-Werbung.