
GSW Gesellschaft für Siedlungs-und Wohnungsbau Baden-Württ. mbH
Frau Vanessa Haile
+49 ···
Nr. anzeigenPreise & Kosten
in Warmmiete enthalten
Kaution
3 x Kaltmiete
Warum sehe ich diese Anzeige? – Du siehst diese Anzeige basierend auf Ihrer Navigation auf unserer Website und den Suchkriterien, die du verwendet hast.
Lage
Die Wohnung befindet sich in attraktiver Wohnlage von Sigmaringen im Wohngebiet Sonnenhalde. Die Umgebung ist geprägt von gepflegten Wohnhäusern und einer ruhigen, angenehmen Nachbarschaft mit hohem Wohnwert.
Das Stadtzentrum von Sigmaringen mit seinen vielfältigen Einkaufsmöglichkeiten, Restaurants, Cafés sowie Ärzten...
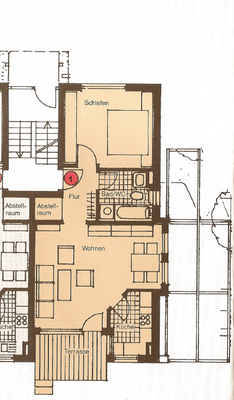
Die Wohnung
Kategorie
Terrassenwohnung
Wohnungslage
Erdgeschoss
Bezug
ab 01.06.2026
Wohnanlage
Energie & Heizung
Warum sehe ich diese Anzeige? – Du siehst diese Anzeige basierend auf Ihrer Navigation auf unserer Website und den Suchkriterien, die du verwendet hast.
Weitere Energiedaten
Energieträger
Gas
Details
Objektbeschreibung
Die freundliche 2-Zimmer-Wohnung liegt im Erdgeschoss eines Mehrfamilienhauses mitten in einer ruhigen aber doch zentralen Wohnlage. Der Zuschnitt der Wohnung ist praktisch und modern.
Ausstattung
Die Wohnung betreten Sie über den Flur, der in alle übrigen Zimmer erschließt, er ist zu Gunsten der übrigen Räume knapp bemessen. Das Badezimmer ist mit einer Dusche und einem WC ausgestattet.
Die Küche ist ein lichtdurchfluteter Raum, dieser mit einer modernen Einbauküche ausgestattet ist. In dem hellen Wohnbereich...
Preisinformation
1 Stellplatz, Miete: 30,00 EUR
Nettokaltmiete: 540,00 EUR
Weitere Informationen
Sonstiges
Zur Wohnung gehört ein Kellerraum. Der Waschmaschinenplatz ist in der Wohnung. Im Keller steht der Hausgemeinschaft ein Trockenraum und ein Fahrradraum zur Verfügung.
Zur Wohnung gehört ein Außenstellplatz. Die monatliche Miete für den Stellplatz beträgt 30.00 Euro.
Ansprechpartner:
Frau Vanessa...
Anbieter der Immobilie

GSW Gesellschaft für Siedlungs-und Wohnungsbau Baden-Württ. mbH
Online-ID: 26f475n
Referenznummer: 4703.1.1
Finde Angebote wie dieses
Hier geht es zu unserem Impressum, den Allgemeinen Geschäftsbedingungen, den Hinweisen zum Datenschutz und nutzungsbasierter Online-Werbung.