
WiREG - Wirtschaftsförderungs- und Regionalentwicklungsgesellschaft Flensburg/Schleswig mbH
Herr Burkhard Otzen
046 ···
Nr. anzeigenPreise & Kosten
Provision für Käufer
provisionsfrei
Lage
Als bedeutender Gewerbestandort und ländlicher Zentralort ist Böklund vor allem durch die fleischverarbeitende Firma "Böklunder" bekannt, aber auch das große Bauunternehmen Boysen ist hier angesiedelt. Unweit dieser Betriebe bietet die Gemeinde Böklund ein Gewerbegebiet mit einer sehr guten Verkehrsanbindung an.
Schleswig...
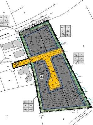
Das Grundstück
Kategorie
Gewerbe-Grundstück
Details
Objektbeschreibung
Die Gemeinde Böklund bietet an der südöstlichen Ortsgrenze rund 17.500qm Erweiterungsfläche des bereits bestehenden und abverkauften Gewerbegebiets Pöttacker an. Das Gewerbegebiet ist verkehrstechnisch gut angeschlossen. Ob Produktionsunternehmen, Dienstleister, Großhandel oder Handwerk, die Flächen sind für alle...
Weitere Informationen
Sonstiges
*Grundstücksbasispreis ab 30 EUR/m² inkl. Erschließungskosten. Es sind Preiszuschläge in Abhängigkeit der Grundstücksnutzung möglich. Es handelt sich um ein mit öffentlichen Mitteln gefördertes Gebiet. Aus diesem Grund sollen die Flächen hauptsächlich an Unternehmen verkauft werden, die die Förderauflagen des...
Anbieter der Immobilie
WiREG - Wirtschaftsförderungs- und Regionalentwicklungsgesellschaft Flensburg/Schleswig mbH
Lise-Meitner-Str. 2, 24941 Flensburg
Online-ID: 2435j5f
Referenznummer: 10561
Finde Angebote wie dieses
Hier geht es zu unserem Impressum, den Allgemeinen Geschäftsbedingungen, den Hinweisen zum Datenschutz und nutzungsbasierter Online-Werbung.